產品分類一覽
吸送式氣力輸送系統
- 吸送式氣力輸送系統
- 所屬類目:負壓氣力輸送
- 產品亮點:

吸送式氣力輸送系統簡介
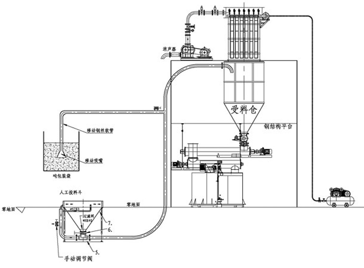
吸送式氣力輸送系統是利用羅茨真空泵產生的真空負壓作為輸送動力,將物料吸入輸送管道,利用料氣分離器將料氣分離,分離后物料在重力作用下,用電動鎖氣閥將物料排入受料倉內,設備安全運行,減少安全事故的發生同時降低企業的運行成本。負壓氣力輸送可根據用戶的需求進行設計,它的另 一個成型設備為卸船機、負壓氣力輸送-卸船機、碼頭負壓吸泵。
吸送式氣力輸送系統工作原理
吸送式氣力輸送系統(也稱負壓氣力輸送系統或負壓風運輸送系統)是高壓離心風機(或羅茨真空泵)產生的真空將散裝粉粒體物料用負壓氣流吸送到指定的容器(料倉),泰華負壓吸送式氣力輸送裝置為核心組成的真空負壓收集系統,特別適用于短距離、物料溫度高、多點卸料的系統中。
散裝物料抽吸機由吸嘴、液壓吸臂、分離卸料裝置、羅茨鼓風機(真空泵)、電控系統等組成??芍苯踊蛲ㄟ^輸送機械將物料送入散裝物料庫(倉)。散裝物料氣力輸送系統由負壓氣力輸送設備(吸嘴、液壓吸臂、分離裝置、羅茨鼓風機或真空泵)和正壓氣力輸送設備(倉式泵、組合泵、空氣壓縮機)以及電控系統組成。
吸送式氣力輸送的特點
1、在負壓作用下,該物料易于吸入,料斗可打開,連續進料、輸送。
2、物料在負壓下輸送,物料里面水汽容易蒸發,因此高含水的物料比高壓進料物料更容易輸送,供熱材料可通過運輸冷卻。
3、部分必須保持密封,分離器、除塵器和空氣制動器部件復雜。
4、風機位于系統的末端,空氣需要凈化。
5、適用于集中輸送,從多個地點到一個地方。進給點可以是一個或多個,并且材料管可以裝載一個或多個分支管。物料可從多個進料點依次輸送到卸料點,也可同時輸送到卸料點。
